《木造11%!》八千代市大和田2棟一括売アパート
7戸/11戸稼働中★木造2階建て2棟一括売アパート☆
満室想定利回り11.02%♪市街化区域♪
「京成大和田」駅より徒歩7分!
ローンシミュレーションこの物件を購入した場合の、月々の支払い価格の一例です。借り入れを保証するものではございません。
- 返済期間
-
- 金利
-
- ボーナス時の増額(1回分)
-
- 借入金額:
-
- 頭金:
-

- 毎月の返済額:
(※元利均等方式 金利5.00%まで ※返済年数5~50年まで入力できます)
(※ボーナスは年2回で計算しています。1000万円まで入力できます)
(※物件購入時、その他諸費用が発生する場合がございます)
想定賃料・利回り・PER
- 想定賃料(1か月分)
-
- 利回り
-

- PER(収益力)
ポイント・特徴
物件概要
【一棟アパート】 物件番号:65146088 情報更新日:2026年01月10日 次回更新予定日:2026年01月24日| 所在地 | 千葉県八千代市大和田 | ||
|---|---|---|---|
| 交通 | |||
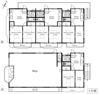
| 間取り/詳細 | 2DK | 建物面積(坪数) | 417.37㎡(126.25坪) |
| 価格 | 5,980万円 | ||
| 管理費 | - | 駐車場/月額料金 | -/- |
| 利回り | 表面11.02%/- | 土地権利 | 所有権 |
| 国土法届出要否 | 不要 | 地目/地勢 | 宅地/平坦 |
| 土地面積 | 496.78㎡ | 専有面積 | - |
| 都市計画 | 市街化区域 | 用途地域 | 近隣商業 |
| 建ぺい率 | 80% | 容積率 | 200% |
| 接道状況 | -(北西 公道 7.0m)(南西 公道 5.0m) | その他の法令上の制限 | 22条区域 第2種高度地区 |
| 種別/構造 | 一棟アパート/木造 | 向き | - |
| 階建 | 2階建 | 築年月(築年数) | 1987年 12月(築38年) |
| 管理組合有無 | - | 管理形態 | - |
| 管理員の勤務形態 | - | 管理会社 | - |
| 棟総戸数/販売戸数 | 11戸/- | 現況/引渡し | 賃貸中/相談 |
| 取引態様 | 仲介 | 建築確認番号 | - |
| 物件番号 | 65146088 | 取引条件の有効期限 | 2026年01月24日 |
| 設備条件 |
|
||
| 備考 |
満室想定年収:6,590,400円 現況年収:3,302,400円 路線価(当社調べ):84,000円 2DK×4部屋 1R×1部屋 2K×6部屋 ◎高積算♪積算価格は約4172万円出ています♪ 《建物》 1号棟:延床面積218.63㎡ 木造2階建 1987年12月築 店舗×1部屋 2DK×4部屋 2号棟:延床面積198.74㎡ 木造2階建 1987年12月築 2K×6部屋 ※契約不適合責任免責 ※司法書士は売主指定 ※都市計画道路、計画決定あり (名称:3・3・7大和田駅前萱田線幅員25m) (名称:3・4・8大和田新田下市場線幅員16m) |
||
| 取扱会社 |
|
||
※地図上に表示される物件の位置は付近住所に所在することを表すものであり、実際の物件所在地とは異なる場合がございます。













